50 Elmfield Avenue, Aberdeen AB24 3PB
£99,000 offers over- Type: Flat
- Availability: For Sale
- Bedrooms: 1
- Bathrooms: 1
- Reception Rooms: 1
- Parking: On Road Parking
- Outside Space: Front Garden, Rear Garden, Shared Garden
- Council Tax Band: B
Property summary
We are delighted to offer for sale this Self Contained Ground Floor Flat forming part of a 2 flatted traditional granite and slate tenement ideally situated within easy reach of the Aberdeen University Campus at Old Aberdeen and the City Centre. The property benefits from many traditional features including high ceilings, traditional fireplace (with gas fire), alcoves with modern benefits including gas fired central heating and double glazing.
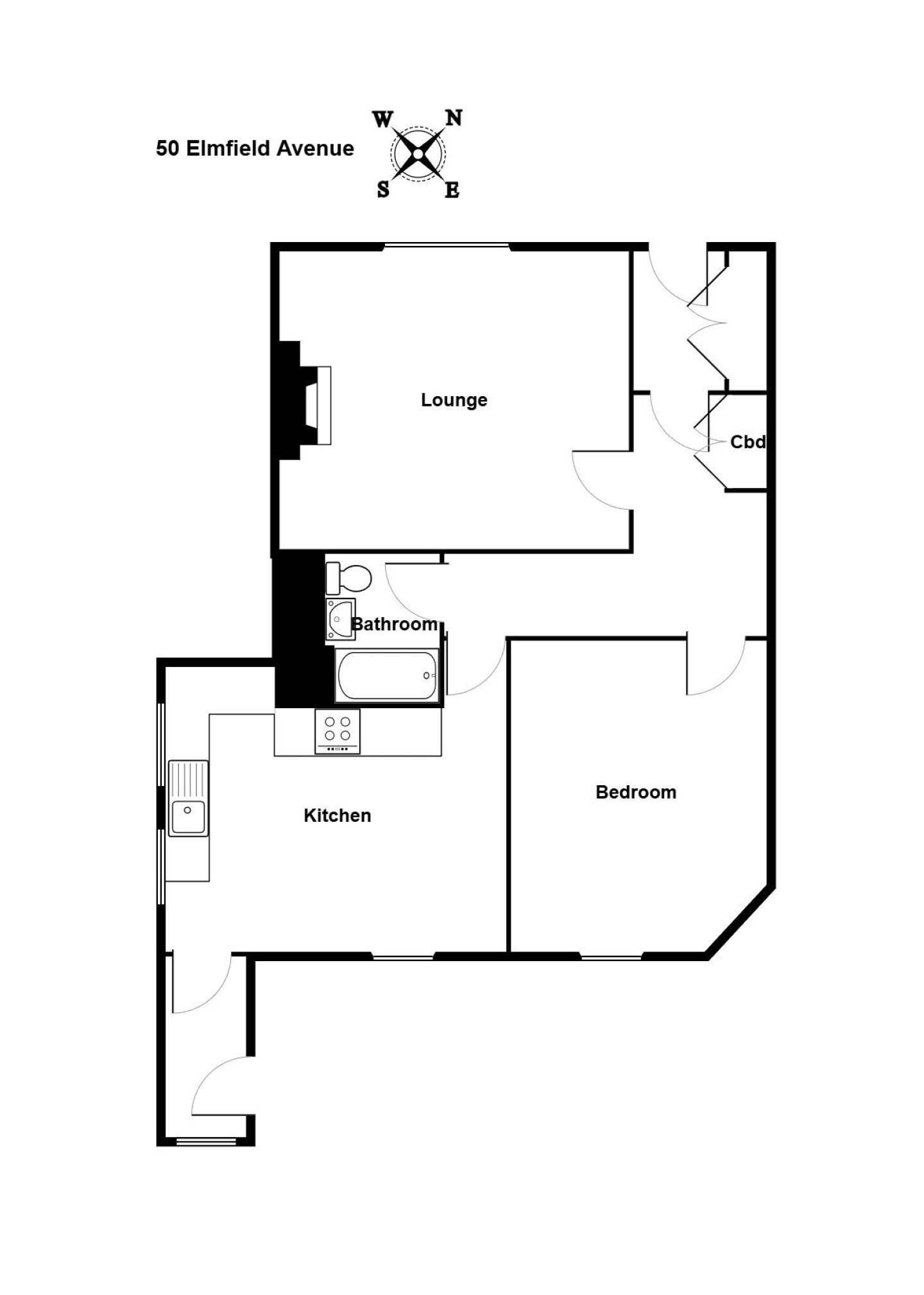
The accommodation comprises Entrance Hallway, bright and spacious Lounge with large window overlooking the front of the property, large Dining Kitchen, good sized Double Bedroom and centrally located Bathroom with overbath shower. All room sizes are generous. There is ample on-street parking. All fitted floor coverings, curtains and most kitchen appliances (where listed) are included in the sale.
Location The property enjoys a quiet location and is within a short walk of Aberdeen University and the city centre. The retail parks at both Kittybrewster and Berryden are within easy walking distance of the property, with various bus routes providing access to Aberdeen Hospitals Complex, Aberdeen International Airport, Aberdeen Sports Village and the wide choice of recreational facilities at Aberdeen Beach.
Full details
Entrance Vestibule: External hardwood door. Tiled floor. Partially glazed door to Hallway.
Hallway: Large deep storage cupboard. Power points. Radiator. Fitted carpet.
Lounge: 4.87m x 4.11m (16’0" x 13’6")approx. A bright and spacious “livingroom” with large window overlooking the front garden. Blinds. Coal effect gas fire set in fireplace with tiled inset and mantelpiece. Radiator. Ample power points; Telephone point. Ceiling light.
Dining Kitchen: 4.34m x 3.65m (14’3" x 12’0") approx. A spacious Dining Kitchen fitted with a range of base and wall mounted units with contrasting worktops. Stainless steel sink and drainer with mixer tap. Washing machine. Slot in cooker. Worcester central heating boiler. Ample space for dining table and chairs. Ample power points. Tiled floor. TV aerial point. Telephone point. Two ceiling lights. Radiator.
Double Bedroom: 3.27m x 4.19m (10’9" x 13’9") approx. With window overlooking the rear garden with roller blind and curtains. Fitted carpet. Radiator. Power points. Telephone point. Ceiling light. Radiator.
Bathroom: Centrally located and fitted with a 3 piece suite with overbath shower. Fully tiled in bath area. Heated towel rail. Usual fitments. Tiled floor.
Rear Vestibule: Power point. Space for fridge/freezer. Back door to garden.
(Outside)
To the front of the property there is a small garden which is exclusive to the property laid out in grass with mature shrubs. To the rear there are 2 large outbuildings with power in rear gardens. Extensive exclusive areas of garden ground and shared drying green.
Location
Make an enquiry
Please complete the form and a member of the team will be in touch with you shortly.
Mortgage calculator
Quickly estimate your mortgage payments with our handy calculator.
