3 Meadow Place, Aberdeen AB24 2SL
£149,000 offers over- Type: Semi-Detached House
- Availability: For Sale
- Bedrooms: 2
- Bathrooms: 1
- Reception Rooms: 2
- Parking: Off Road Parking
- Outside Space: Front Garden, Rear Garden
- Council Tax Band: C
Property summary
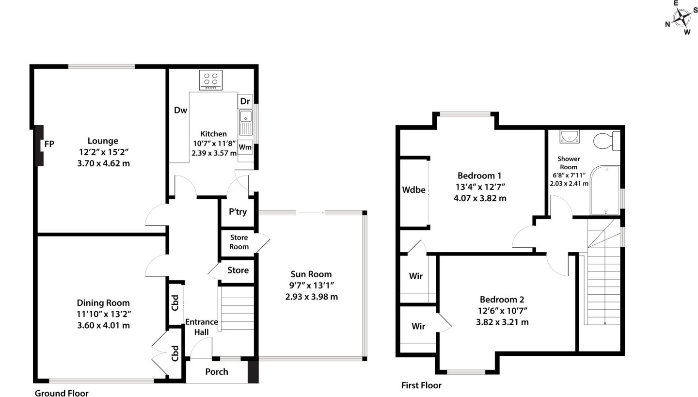
We are delighted to offer to the market for sale this well presented two bedroom semi-detached dwellinghouse situated on a generous corner plot in the quiet and well-established area of Tillydrone, close to Aberdeen University campus, Seaton Park and Diamond Bridge. The property benefits from double glazing and gas fired central heating.
The accommodation, on two floors, comprises welcoming Entrance Hallway, well proportioned Lounge with large window overlooking the rear garden, separate Dining Room/Family Room and well appointed Kitchen. The first floor has 2 generous Double Bedrooms both of which have walk-in cupboards with hanging rail and shelving provide considerable storage and Shower Room.
Outside, the extensive front and side gardens are well stocked with a range of mature shrubs and plants and the rear garden also has the benefit of a shared drying green. The property also boasts a Garden Room to the side of the property within which to relax and enjoy the gardens. A paved driveway provides off-street parking for 1 car. All room sizes are generous. The property also boasts considerable storage with cupboards in the Entrance Hallway, Dining Room and both Bedrooms.
Location Meadow Place lies just off Gordon's Mills Road in the Donside area of the city with a wide range of local shops as well as Tesco Superstore and amenities within walking distance. Nursery, primary and secondary education is catered for nearby and regular public transport to the city centre and other parts of the city is readily available. The property is ideally placed to take advantage of the Diamond Bridge giving easy access to the business centres to the north of the city and lovely walks along the River Don.
Full details
Location
Make an enquiry
Please complete the form and a member of the team will be in touch with you shortly.
Mortgage calculator
Quickly estimate your mortgage payments with our handy calculator.
