16 Allan Place, Inverurie, AB51 4TD
£259,000 offers over- Type: Semi-Detached House
- Availability: For Sale
- Bedrooms: 4
- Bathrooms: 2
- Reception Rooms: 1
- Parking: Driveway, Single Garage
- Outside Space: Front Garden, Rear Garden
- Council Tax Band: D
Property summary
We are delighted to offer for sale this immaculate and tastefully decorated home situated on a large corner plot. The property has been imaginatively extended and offers ideal, spacious accommodation for a family home.
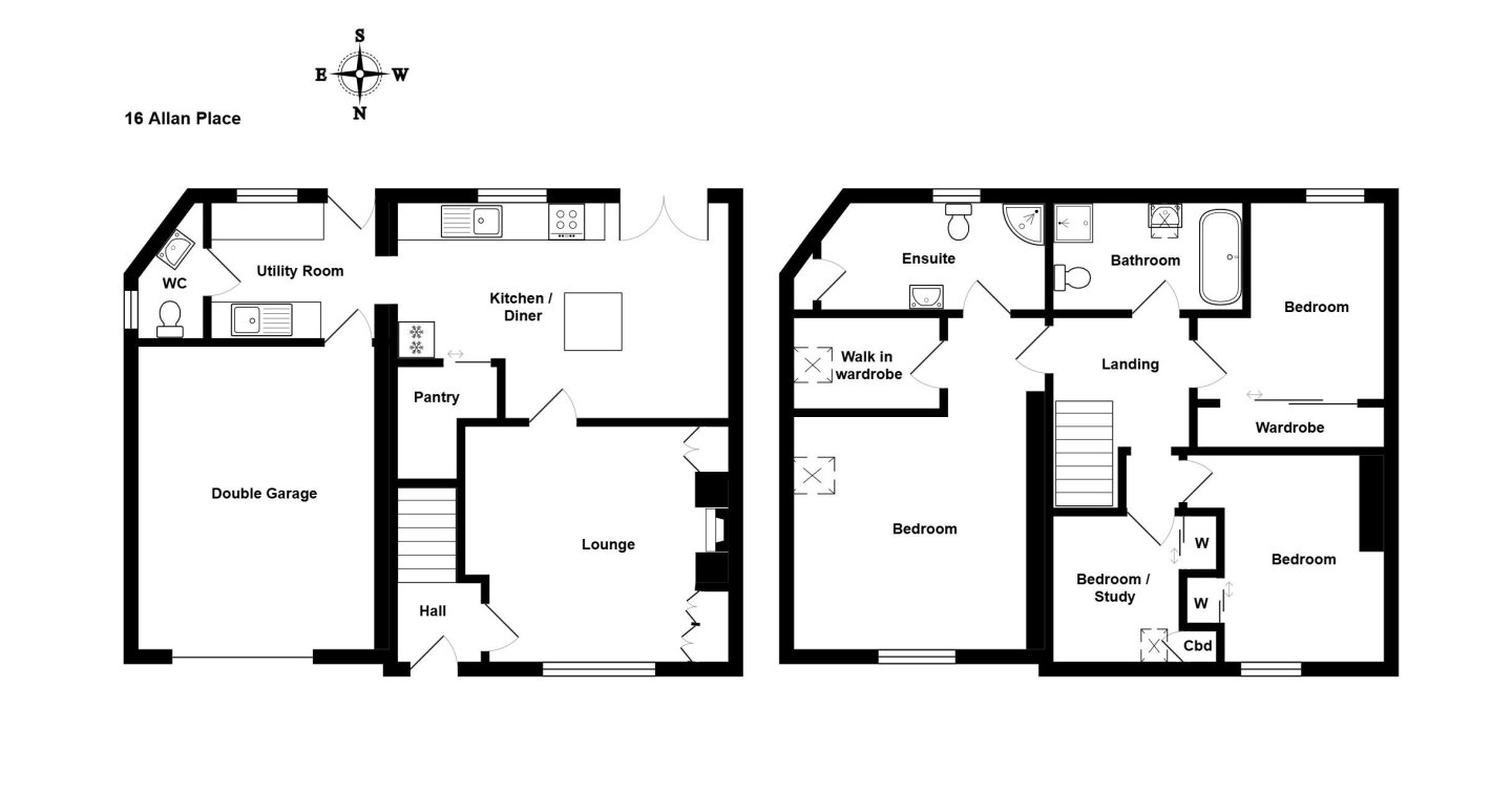
The ground floor consists of a lounge with wood-burning stove and built-in storage cupboards leading to a large family dining kitchen with ample storage cupboards and countertops with an island counter and a range cooker with 5 gas burners and double oven and grill. The kitchen includes a substantial walk-in pantry with shelving and patio doors giving direct access the south facing private garden. The dining kitchen then leads to a large utility area with additional sink and further storage and counter tops with access to the downstairs W.C.. There is another access door to the garden from the utility area. A spacious single garage is accessed from the utility room containing substantial storage.
On the first floor are 3 double bedrooms and a further fourth box room bedroom. The extensive principal bedroom includes a large walk-in wardrobe and dressing room (with hanging and storage on both walls) and spacious en-suite with a shower and large built-in cupboard and separate shelving. The further two double bedrooms both have substantial built-in wardrobe storage. The first floor also has a fourth boxroom bedroom (currently used as a study) with built-in wardrobe and additional storage cupboard. The first floor is completed with a substantial family bathroom with a freestanding bath and separate shower.
The secluded rear garden is south facing and has a patio area, a lawn and a double length shed ideal for garden furniture and further storage. There is a path linking the rear and front gardens. The front garden consists of shrubbery and plants with three established fruit trees. There is ample parking space for two cars on the tarred driveway at the front of the property. In addition, there are taps fitted in the rear garden and the garage.
Early viewing is advised to appreciate all this house has to offer.
Location Allan Place is a quiet street which runs between North Street and Harlaw Road, so the house is particularly convenient for Strathburn School and Inverurie Academy. It is in easy walking distance to the all the amenities of Inverurie such as the vibrant town centre, railway station and Garioch Sport Centre, as well as multiple supermarkets including Aldi and Tesco Extra.
Full details
(Ground Floor)
Hallway: Entered by UPVC leaded/stained glass front door, electric consumer unit cupboard and small storage cupboard, laminate flooring which extends into the living room, kitchen/dining room, utility room and W.C.
Lounge: 5.97m x 3.99m (19'7" x 13'1") approx. This is a delightful room located to the front of the property with double glazed picture window. Multi-fuel stove on granite plinth with mantle shelf and built in storage cupboards.
Dining Kitchen: 5.54m x 3.58m (18'2" x 11'8") approx. uPVC patio doors lead from the room into the rear garden. The spacious kitchen has an island unit with two sets of cupboards, a large walk-in pantry, a range of base units, a shelved, glass fronted wall unit and work tops. There is a ceramic 1 drainer sink, a "Rangemaster Toledo" with five gas rings, two electric ovens and a grill, an integral dishwasher and a "Whirlpool" American style fridge/freezer. There is tiling around the cooker and the sink and a ceiling suspended pot rack.
Utility Room: 3.00m x 1.68 (9'10" x 5'6") approx. A single drainer, stainless steel sink, work tops and floor units, tiling at the sink. A washing machine and tumble dryer. Access by door into the integral garage, the garden and the W.C..
Cloakroom: With W.C, wash hand basin and mirror.
(First Floor)
Landing with large ceiling hatch to the loft space.
Master Bedroom: 4.37m x 3.51m (14'4" x 11'6") approx. Large double bedroom located to the front of the property with large double glazed window to the front and Velux roof light to the side. Two matching wall lights
Dressing room/Walk in wardrobe: 2.74m x 2.44m (8'11" x 8'0") approx. Both walls are taken up with hanging space, open drawer space and shelving: Velux roof window.
Ensuite Shower Room: 3.58m x 1.78m (11'8" x 5'10") approx. Wash hand basin set in a unit: tiling, glass shelving and mirror: W.C. and plumbed in "Mira" shower in "Aqua panel" cabinet with curved glass door: fitted, airing/storage cupboard: open, shelved cupboard: ladder style central heating radiator/towel rail.
Bedroom Two: 3.25m x 3.10m (10'7" x 10'2") at widest approx. Double bedroom at the rear, large fitted, shelved wardrobes, with mirror-fronted doors occupy the whole of one wall
Bedroom Three: 3.43m x 3.00m (11'3" x 9'10") approx. Double bedroom at the front with fitted, double, shelved wardrobe.
Box Bedroom / Study: 2.46m x 2.13m (8'0" x 6'11") approx. Has fitted double wardrobe and a fitted, shelved cupboard, shelving and Velux roof light.
Bathroom: 3.30m x 1.75m (10'9" x 5'8) approx. Period style white bath and separate electric shower in tiled cabinet, glass corner shelving and stainless steel towel racks, Mirror, tiling on the wash hand basin and bath walls, ladder style central heating radiator/towel rail and Velux roof light.
Loft: Partly floored loft space accessed by folding ladder
(Outside)
Garage: 5.31m x 4.37m (17'5" x 14'4") approx. Spacious. Door from utility room and also a remote controlled up and over door, fitted with power and light, shelving, wall mounted central heating boiler.
The front garden consists of a tarred parking area, sufficient for two cars and two garden areas with shrubs and conifers, and laid out in granite chippings.
A path runs along the side of the house, where there is a wrought iron gate, to the secluded rear garden which comprises a grass area, a loc bloc area adjoining the house and a large shed, ideal for garden furniture and general storage.
(Other Information)
There is gas central hearing, double glazing and generous storage throughout. All carpets, curtains and blinds are included in the price, as are all the fitted kitchen appliances. There is also a security alarm fitted.
Location
Make an enquiry
Please complete the form and a member of the team will be in touch with you shortly.
Mortgage calculator
Quickly estimate your mortgage payments with our handy calculator.
